SWAN Hill Specialist School is set for a major upgrade.
More than $6 million was allocated to the school in the State Budget.
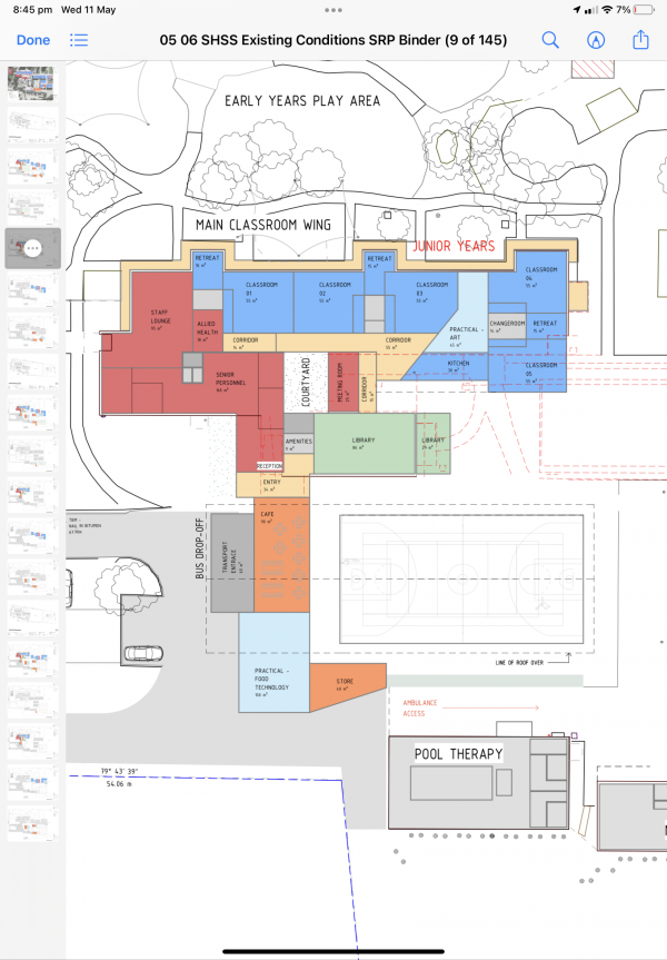
Principal Jodi Walters said the funding announcement was a win for the school and would allow it to progress to the second stage of its refurbishment master plan.
“It’s very exciting,” Ms Walters said.
“A lot of work behind the scenes has gone into this to make it happen.”
Ms Walters said the school had developed a four-stage master plan that would modernise and synchronise facilities, creating seamless connectivity throughout the school for both staff and students.
Under the plan the school’s main administration building will undergo a major overhaul and a new cafe will be built onsite.
“We’ve been working on our master plan for a number of years now,” Ms Walters said, noting the school had outgrown its existing facilities.
The school’s enrolment has grown significantly since it first opened in Yana Street in the 1980s, with more than 100 enrolments today.
“In the seven years I have been principal, we’ve brought in around seven or eight portable buildings as our enrolments have increased,” Ms Walters said.
“While we have made do with the resources we have, demountables just don’t cut it for the diverse needs of our students.”
Looking towards the future, Ms Walters said the funding would enable the school to streamline its facilities, with accessibility, inclusion and community key components of the overall design.
The construction of a new undercover basketball court will signal the start of the master plan.
While COVID-19 and supply shortages have delayed the build, it is expected to start in the next month.
Ms Walters said the school was delighted to see the plans come to fruition and that its hard work and foresight were recognised.
Member for Northern Victoria Mark Gepp said the upgrade would deliver more space for the school, while improving learning spaces and sports facilities – giving students better educational outcomes in more modern facilities.
“You can’t get a first-rate education in a second-rate classroom,” Mr Gepp said. “This investment will go a long way towards improving the facilities for students at Swan Hill Specialist School and making their educational journey a modern and engaging one.”















